Effiziente Rohrleitungsplanung von erfahrenen Ingenieuren für den Rohrleitungsbau

Als erfahrener Ingenieur für den Anlagenbau liefern wir durchgängige 2D- und 3D-Konzepte: für technisch und statisch einwandfreie Rohrleitungssysteme.

Warum IBK Rohrleitungsplanung Ihr Partner für erfolgreiche Projekte ist

40+ Jahre Erfahrung im Rohrleitungsbau

Die IBK Rohrleitungsplanung GmbH wurde 1980 in Bad Lauterberg gegründet und ist seither ein unabhängiges Ingenieurbüro, das sich auf effiziente Rohrleitungsplanung und technische Beratung spezialisiert hat. Mit über 40 Jahren Erfahrung im Rohrleitungsbau begleiten wir erfolgreich Projekte im Anlagenbau – von der Konzeption über die 3D-Planung bis zur Fertigung und Montage. Unsere Ingenieure verfügen über fundiertes Know-how in der Planung von Rohrleitungssystemen für Chemieanlagen, Bestandsanlagen und verfahrenstechnische Industrieanlagen. Dabei setzen wir auf praxisnahe Lösungen, die den Transport von Flüssigkeiten, Gasen oder Feststoffen sicher und regelwerkskonform gewährleisten.

Einsatz modernster Technologien

Die IBK Rohrleitungsplanung GmbH setzt auf moderne Softwarelösungen und spezialisierte Berechnungssoftware, um eine durchgängige und effiziente Anlagen- und Rohrleitungsplanung zu gewährleisten. Durch den Einsatz von digitalen 3D-Planungsmethoden erreichen wir höchste Präzision bei der Erstellung von Rohrleitungsisometrien und R&I-Fließschemata. Unsere fundierte Expertise in Engineering und Mechanical Design ermöglicht es uns, komplexe Rohrleitungssysteme technisch einwandfrei auszulegen, inklusive Dimensionierung von Armaturen und Halterungen. Mit digitalen Planungsprozessen und Kollisionsprüfungen stellen wir zukunftssichere Lösungen für Ihre Industrieanlage sicher.

Kundenfreundlichkeit

IBK erarbeitet in enger Abstimmung mit den Projektbeteiligten praktikable, wirtschaftliche und regelwerkskonforme Lösungen bei der Rohrleitungsplanung und statischen Berechnung. Als erfahrener Rohrleitungsplaner begleiten wir Sie durch alle Projektphasen, von der ersten Aufstellungsplanung über die technische Auslegung von Rohrleitungskomponenten bis zur finalen Dokumentation. Unsere Ingenieure und spezialisierte Fachkräfte verstehen die Anforderungen der Prozessindustrie und Verfahrenstechnik und liefern ganzheitliche Lösungen für komplexe Aufgabenstellungen. Dabei berücksichtigen wir nicht nur die Planung von Rohrleitungen und Anlagen, sondern auch die Integration von Messtechnik, Druckbehältern und Dampfkesseln. Unser Ziel: eine nahtlose Planung im Rohrleitungsbau, die Potenziale erschließt und dem Kostendruck standhält.

Qualifizierte Ingenieure für Ihre Rohrleitungsprojekte

Als unabhängiges Ingenieurbüro sind wir seit 1980 auf Rohrleitungsplanung und -berechnung spezialisiert und bieten umfassende Dienstleistungen für alle Projektphasen an.

Arbeiter mit Tablet an einer Pipeline
40+
Jahre Erfahrung

Ganzheitliche Planung im Rohrleitungsbau: Von der 3D-Planung bis zur finalen Isometrie.

Umfassende Planungs- und Beratungsleistungen für Rohrleitungssysteme.

Rohrleitungsplanung

Entwicklung langlebiger Rohrleitungslösungen.

Pipeline mit rotem Ventil

Rohrleitungsberechnung

Dimensionierung und statische Berechnung nach relevanten Regelwerken.

Arbeiter mit Tablet an einer Pipeline

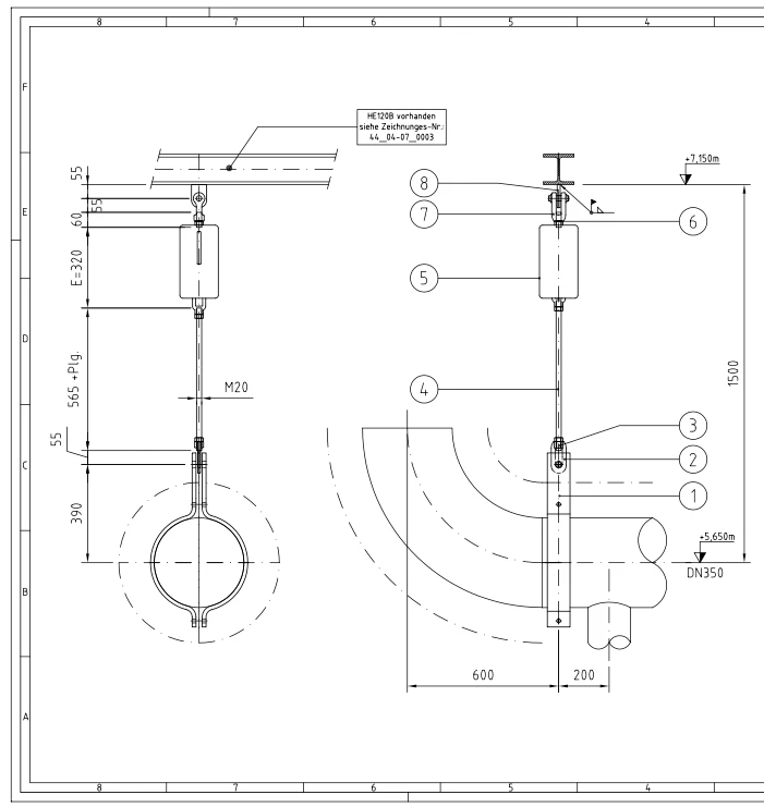
Detailkonstruktion

Präzise Planung von Rohrhalterungen nach Spezifikationen und Vorgaben.

Technische Zeichnung einer Rohrleitung

Tragwerkberechnungen

Rohrtragender Stahlbau (Sekundärstahlbau), Arbeits- und Bedienbühnen, Entwurfsstatiken von Rohrbrücken und Rohr-Stützen.

Stahlkonstruktion mit Rohrleitungen

Beratung

Unterstützung mit unserer Branchenerfahrung und technischen Expertise im Fachgebiet Rohrleitungen.

Mann in Sicherheitskleidung mit Tablet

Zusatzleistungen

Neben unseren Kernkompetenzen in der Rohrleitungsplanung bieten wir eine Reihe von Zusatzleistungen an, die darauf abzielen, Ihr Projekt ganzheitlich zu unterstützen und den Erfolg sicherzustellen.

Große Rohrleitung in einer Fabrik

Warum IBK

Ihr erfahrener Rohrleitungsplaner für technisch anspruchsvolle Projekte.

Erfahrung

Langjährige Aktivität im Tätigkeitsfeld der Rohrleitungsplanung bei veränderlichen, abwechslungsreichen Vorgaben, Rahmenbedingungen, Regelwerken und Kundenwünschen.

Transparenz

Sachliche, klare und nachvollziehbare Kommunikation und Dokumentation

Fachkompetenz

Aus zahlreichen Projekten erworbenes, fundiertes Fachwissen in den Regelwerken und Programmen als Basis für eine regelwerkskonforme Lösungsfindung und Auftragsbearbeitung

Flexibilität

Schnelle Anpassung an geänderte Vorgaben, Aufgabenstellungen und Anforderungen

Zuverlässigkeit

Erfüllung von Absprachen mit den Projektbeteiligten und Lieferung fachlich korrekter Ergebnisse

Kommunikation

Ehrlichkeit und Offenheit bei der Projektabwicklung schaffen ein angenehmes Arbeitsklima und tragen dazu bei, Anforderungen, Aufgaben und Schwierigkeiten frühzeitig zu benennen und gemeinsame, optimale Lösungen zu finden

Erweitertes Know-how durch unser Netzwerk spezialisierter Ingenieure

Bei besonders umfangreichen Projekten im Anlagenbau oder spezifischen technischen Aufgabenstellungen greifen wir auf ein bewährtes Netzwerk von Partnerfirmen zurück. Diese Zusammenarbeit ermöglicht es uns, auch komplexe Rohrleitungsplanung für Chemieanlagen oder Bestandsanlagen effizient und durchgängig umzusetzen.
Durch die Expertise spezialisierter Fachkräfte im Bereich Engineering, digitaler 3D-Planung und der Erstellung von Rohrleitungsisometrien sowie P&ID-Diagrammen können wir ganzheitliche Lösungen für Ihre Projekte im Anlagenbau liefern. Unsere Partner unterstützen uns bei der technischen Auslegung von Rohrleitungssystemen, der Dimensionierung von Armaturen und Pumpen sowie bei hydraulischen Berechnungen.
So profitieren Sie von der Expertise eines etablierten Ingenieurbüros für Rohrleitungsbau, ergänzt durch die Kompetenzen erfahrener Engineer. Wir bieten Ihnen eine nahtlose Anlagen- und Rohrleitungsplanung – von der Konzeption über die digitale Modellierung bis zur finalen Dokumentation nach geltenden Regelwerken.
Projekte
0 +
Jahre Erfahrung
0 +